Перейти к контенту
Подбор и сравнение проектов домов от застройщиков Московской области
Подборщик домов
Калькулятор сметы
Калькулятор площади
Форум
Блог
Главная
›
Каталог проектов
›
Двухэтажный дом «Верея» | ЭкоТех
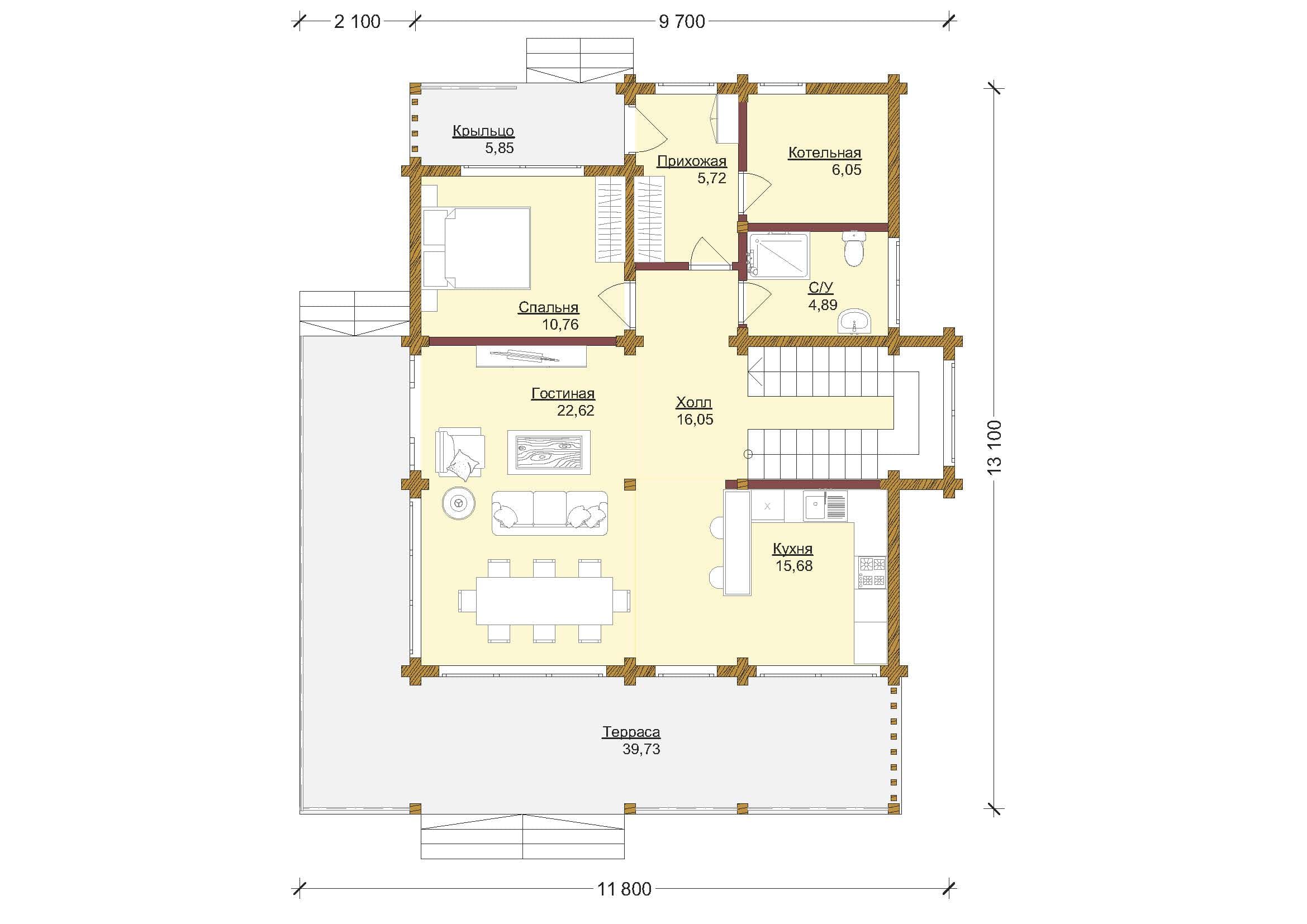
Двухэтажный дом «Верея» | ЭкоТех
Застройщик: Эко-Тех
250.4 м²
1 / 3
🏠
250.4 м²
🛏
4 спален
🚿
3 санузл.
📐
2 этаж
🧱
Клееный брус
Похожие проекты
Похожие по цене
Похожие по площади
Проект одноэтажного коттеджа "Люкс" из газобетона
2 этаж
от 11 765 000 ₽
→
Проект M-168-1P
2 этаж
от 11 760 700 ₽
→
Дом Миронцево из газобетона: заказать в Москве по низкой цене
4 спальн. · 3 санузл. · 2 этаж
от 11 760 000 ₽
→
Проект E-250-1P
2 этаж
от 17 514 700 ₽
→
Проект дома H-251-1P
3 этаж
от 17 542 000 ₽
→
Проект V-250-1P
3 этаж
от 17 507 000 ₽
→
На сайт застройщика