Перейти к контенту
Подбор и сравнение проектов домов от застройщиков Московской области
Подборщик домов
Калькулятор сметы
Калькулятор площади
Форум
Блог
Главная
›
Каталог проектов
›
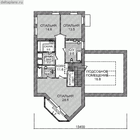
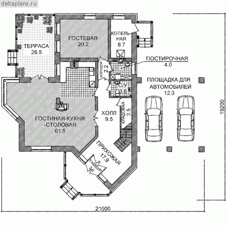
Проект E-250-1P
Проект E-250-1P
Застройщик: Юникс-Строй
250.21 м²
1 / 3
🏠
250.21 м²
📐
2 этаж
🧱
Пеноблок
Похожие проекты
Похожие по цене
Похожие по площади
Проект одноэтажного дома "Воздушный" из бруса
5 спальн. · 2 этаж
от 17 520 792 ₽
→
Проект V-250-1P
3 этаж
от 17 507 000 ₽
→
Дом по проекту «ЗС 335-18» - Золотое Сечение
4 спальн. · 2 санузл.
от 17 500 000 ₽
→
Проект V-250-1P
3 этаж
от 17 507 000 ₽
→
Двухэтажный дом «Верея» | ЭкоТех
4 спальн. · 3 санузл. · 2 этаж
от 11 766 000 ₽
→
Проект одноэтажного коттеджа "Клаус" из газобетона
6 спальн. · 2 этаж
от 10 388 000 ₽
→
На сайт застройщика