Перейти к контенту
Подбор и сравнение проектов домов от застройщиков Московской области
Подборщик домов
Калькулятор сметы
Калькулятор площади
Форум
Блог
Главная
›
Каталог проектов
›
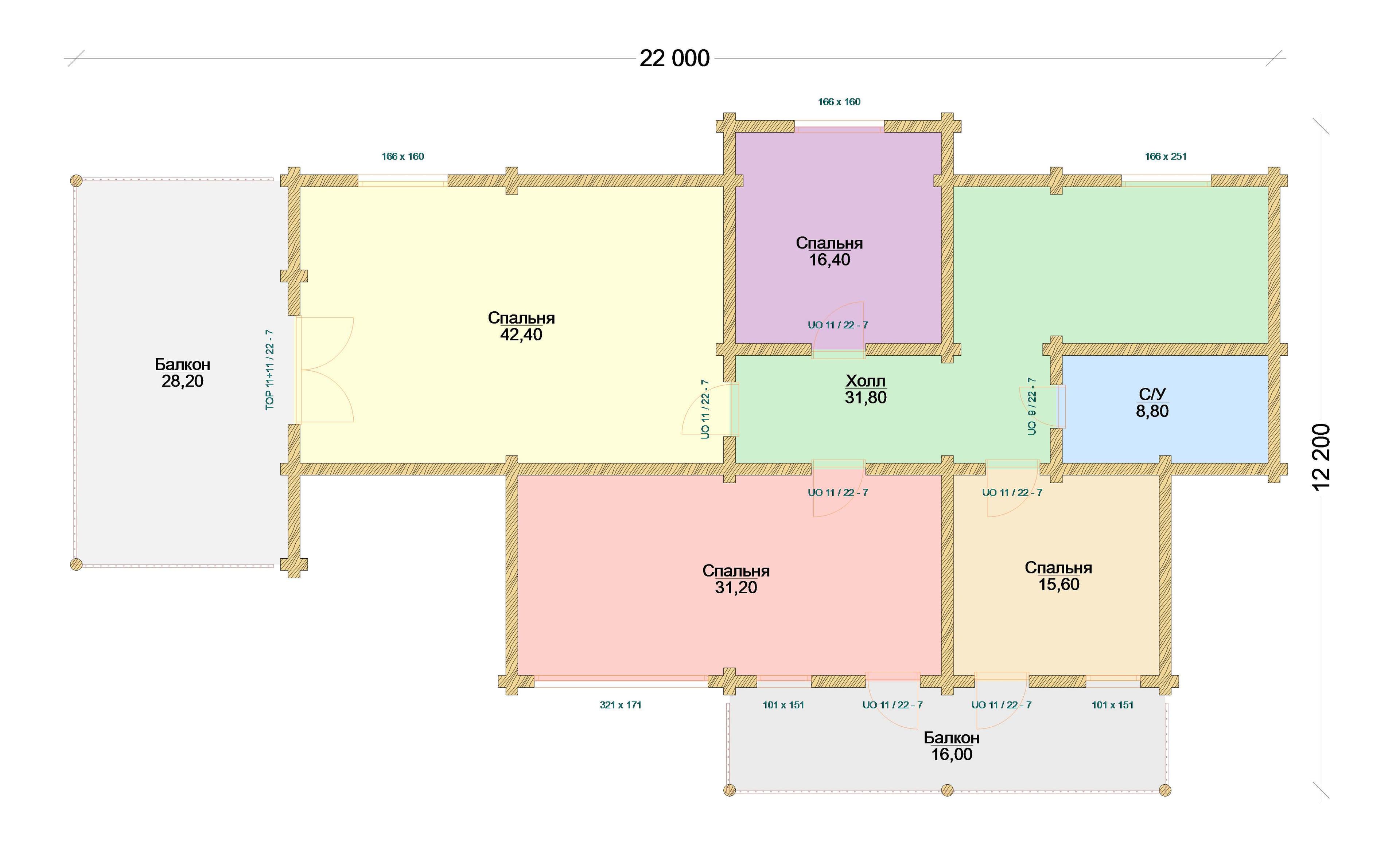
Дом из бревна ручной рубки «Ньютон» | ЭкоТех
Дом из бревна ручной рубки «Ньютон» | ЭкоТех
Застройщик: Эко-Тех
375.0 м²
1 / 3
🏠
375.0 м²
🛏
4 спален
🚿
2 санузл.
📐
2 этаж
🧱
Ручная рубка
Похожие проекты
Похожие по цене
Похожие по площади
Проект V-247-1P
3 этаж
от 17 324 300 ₽
→
Проект E-211-1K
2 этаж
от 17 326 600 ₽
→
Проект дома M-246-2P
2 этаж
от 17 313 100 ₽
→
Дом Минаево из газобетона: заказать в Москве по низкой цене
2 этаж
от 19 990 000 ₽
→
Дом Минаево из кирпича: заказать в Москве по низкой цене
2 этаж
от 19 990 000 ₽
→
Проект A-375-1K
3 этаж
от 30 750 000 ₽
→
На сайт застройщика