Перейти к контенту
Подбор и сравнение проектов домов от застройщиков Московской области
Подборщик домов
Калькулятор сметы
Калькулятор площади
Форум
Блог
Главная
›
Каталог проектов
›
Проект V-247-1P
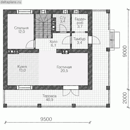
Проект V-247-1P
Застройщик: Юникс-Строй
247.49 м²
1 / 4
🏠
247.49 м²
📐
3 этаж
🧱
Пеноблок
Похожие проекты
Похожие по цене
Похожие по площади
Дом из бревна ручной рубки «Ньютон» | ЭкоТех
4 спальн. · 2 санузл. · 2 этаж
от 17 323 270 ₽
→
Проект E-211-1K
2 этаж
от 17 326 600 ₽
→
Проект G-211-1K
2 этаж
от 17 334 800 ₽
→
Проект S-248-1K
2 этаж
от 20 295 000 ₽
→
Проект одноэтажного коттеджа "Софьинский" из газобетона
7 спальн. · 2 этаж
от 11 001 000 ₽
→
Проект G-247-1D
2 этаж
от 37 138 500 ₽
→
На сайт застройщика