Перейти к контенту
Подбор и сравнение проектов домов от застройщиков Московской области
Подборщик домов
Калькулятор сметы
Калькулятор площади
Форум
Блог
Главная
›
Каталог проектов
›
Проект дома H-195-1P
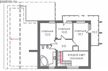
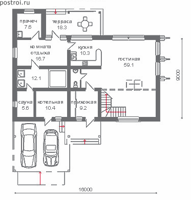
Проект дома H-195-1P
Застройщик: Юникс-Строй
194.6 м²
1 / 3
🏠
194.6 м²
📐
2 этаж
🧱
Пеноблок
Похожие проекты
Похожие по цене
Похожие по площади
Проект дома из газоблоков 19х14 ГББ-192: цена 10497000 руб.
4 спальн. · 1 этаж
от 13 623 000 ₽
→
Проект дома «Юджин»
4 спальн. · 1 этаж
от 13 625 000 ₽
→
Дом из газобетонных блоков С-307 ГБ «Астра»
5 спальн. · 3 санузл. · 1 этаж
от 13 630 000 ₽
→
Каркасный дом С-195 КР «Велюр»
4 спальн. · 2 санузл. · 4 этаж
от 8 297 000 ₽
→
Песня 5
4 спальн. · 2 санузл. · 1 этаж
от 8 764 000 ₽
→
Песня 5
4 спальн. · 2 санузл. · 1 этаж
от 8 764 000 ₽
→
На сайт застройщика