Перейти к контенту
Подбор и сравнение проектов домов от застройщиков Московской области
Подборщик домов
Калькулятор сметы
Калькулятор площади
Форум
Блог
Главная
›
Каталог проектов
›
Проект R-166-1K
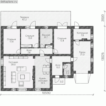
Проект R-166-1K
Застройщик: Юникс-Строй
166.0 м²
1 / 2
🏠
166.0 м²
📐
1 этаж
🧱
Кирпич
Похожие проекты
Похожие по цене
Похожие по площади
Проект U-194-1P
2 этаж
от 13 608 000 ₽
→
Проект U-194-2P
2 этаж
от 13 608 000 ₽
→
Проект дома H-195-1P
2 этаж
от 13 622 000 ₽
→
Проект одноэтажного дома "Арабика" из бруса
3 спальн. · 2 этаж
от 9 985 675 ₽
→
Проект одноэтажного дома "Боярский" из бревна
2 спальн. · 2 этаж
от 8 945 355 ₽
→
Проект одноэтажного коттеджа "Красная шапочка КД" из газобетона
4 спальн. · 2 этаж
от 9 720 000 ₽
→
На сайт застройщика