Перейти к контенту
Подбор и сравнение проектов домов от застройщиков Московской области
Подборщик домов
Калькулятор сметы
Калькулятор площади
Форум
Блог
Главная
›
Каталог проектов
›
Проект дома I-197-1P
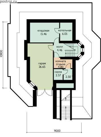
Проект дома I-197-1P
Застройщик: Юникс-Строй
196.5 м²
1 / 4
🏠
196.5 м²
📐
3 этаж
🧱
Пеноблок
Похожие проекты
Похожие по цене
Похожие по площади
Проект W-167-1K
2 этаж
от 13 751 400 ₽
→
Проект A-197-1P
2 этаж
от 13 750 800 ₽
→
Дом по проекту «ЗС 41-16» - Золотое Сечение
3 спальн. · 2 санузл.
от 13 750 000 ₽
→
Проект одноэтажного дома "Кантри-хаус" из бруса
1 спальн. · 2 этаж
от 15 115 043 ₽
→
Проект A-197-1P
2 этаж
от 13 750 800 ₽
→
Проект одноэтажного коттеджа "Золотая нива" из газобетона
3 спальн. · 2 этаж
от 10 408 000 ₽
→
На сайт застройщика