Перейти к контенту
Подбор и сравнение проектов домов от застройщиков Московской области
Подборщик домов
Калькулятор сметы
Калькулятор площади
Форум
Блог
Главная
›
Каталог проектов
›
Проект дома R-605-1P
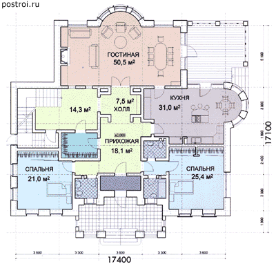
Проект дома R-605-1P
Застройщик: Юникс-Строй
603.3 м²
1 / 4
🏠
603.3 м²
📐
3 этаж
🧱
Пеноблок
Похожие проекты
Похожие по цене
Похожие по площади
Проект Y-282-1D
2 санузл. · 3 этаж
от 42 255 000 ₽
→
Проект A-281-1D
2 этаж
от 42 270 000 ₽
→
Проект дома «Woodland»
4 спальн. · 6 санузл. · 2 этаж
от 42 000 000 ₽
→
Проект R-664-1K
3 этаж
от 49 446 000 ₽
→
Проект O-485-1K
3 этаж
от 49 659 200 ₽
→
Современный дом в стиле Барн Хаус «Вилар»
5 спальн. · 4 санузл. · 2 этаж
от 36 384 000 ₽
→
На сайт застройщика