Перейти к контенту
Подбор и сравнение проектов домов от застройщиков Московской области
Подборщик домов
Калькулятор сметы
Калькулятор площади
Форум
Блог
Главная
›
Каталог проектов
›
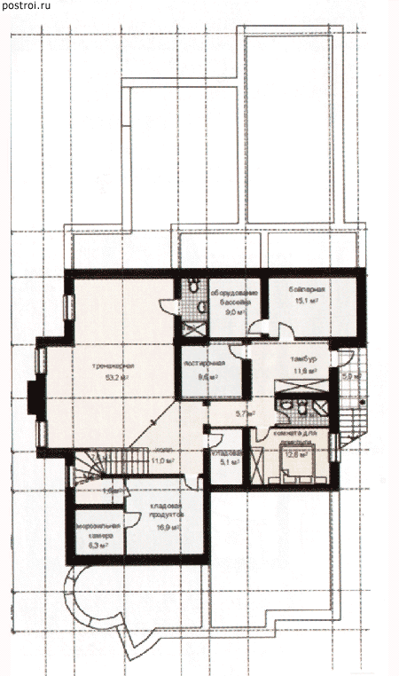
Проект R-664-1K
Проект R-664-1K
Застройщик: Юникс-Строй
603.0 м²
1 / 4
🏠
603.0 м²
📐
3 этаж
🧱
Кирпич
Похожие проекты
Похожие по цене
Похожие по площади
Резиденция в стиле минимализм Молеон
6 спальн. · 7 санузл. · 2 этаж
от 49 500 000 ₽
→
Проект O-485-1K
3 этаж
от 49 659 200 ₽
→
Дом в стиле Райта с большой террасой «Вангард»
6 спальн. · 7 санузл. · 2 этаж
от 49 686 000 ₽
→
Проект дома R-605-1P
3 этаж
от 42 231 000 ₽
→
Проект O-485-1K
3 этаж
от 49 659 200 ₽
→
Двухэтажный дом в стиле Хай-Тек «CHARLESTON»
3 спальн. · 5 санузл. · 2 этаж
от 35 916 000 ₽
→
На сайт застройщика