Перейти к контенту
Подбор и сравнение проектов домов от застройщиков Московской области
Подборщик домов
Калькулятор сметы
Калькулятор площади
Форум
Блог
Главная
›
Каталог проектов
›
Проект A-123-1D
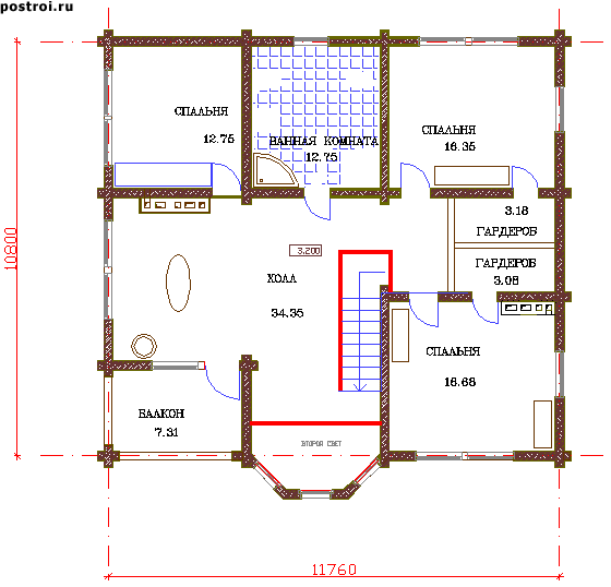
Проект A-123-1D
Застройщик: Юникс-Строй
214.0 м²
1 / 3
🏠
214.0 м²
📐
2 этаж
🧱
Дерево
Похожие проекты
Похожие по цене
Похожие по площади
Проект I-391-1K
2 этаж
от 32 084 140 ₽
→
Проект дома V-458-1P
3 этаж
от 32 081 000 ₽
→
Дом по проекту «ЗС 9-16» - Золотое Сечение
3 спальн. · 3 санузл.
от 32 125 000 ₽
→
Каркасный дом «Солнечное
от 11 985 000 ₽
→
Дом по проекту «Дессау» - Золотое Сечение
2 спальн. · 3 санузл.
от 26 750 000 ₽
→
Дом по проекту «ЗС 32-17» - Золотое Сечение
4 спальн. · 3 санузл.
от 26 750 000 ₽
→
На сайт застройщика