Перейти к контенту
Подбор и сравнение проектов домов от застройщиков Московской области
Подборщик домов
Калькулятор сметы
Калькулятор площади
Форум
Блог
Главная
›
Каталог проектов
›
Проект E-477-1P
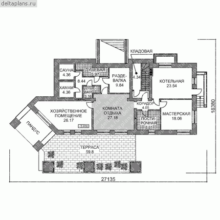
Проект E-477-1P
Застройщик: Юникс-Строй
477.1 м²
1 / 4
🏠
477.1 м²
📐
3 этаж
🧱
Пеноблок
Похожие проекты
Похожие по цене
Похожие по площади
Проект J-407-1K
2 этаж
от 33 382 200 ₽
→
Дом по проекту «ЗС 835-20» - Золотое Сечение
2 спальн. · 2 санузл.
от 33 375 000 ₽
→
Проект M-407-1K
2 этаж
от 33 437 140 ₽
→
Проект N-477-1K
2 этаж
от 39 122 200 ₽
→
Проект J-477-1K
2 этаж
от 39 089 400 ₽
→
Проект S-439-1K
2 этаж
от 39 089 400 ₽
→
На сайт застройщика