Перейти к контенту
Подбор и сравнение проектов домов от застройщиков Московской области
Подборщик домов
Калькулятор сметы
Калькулятор площади
Форум
Блог
Главная
›
Каталог проектов
›
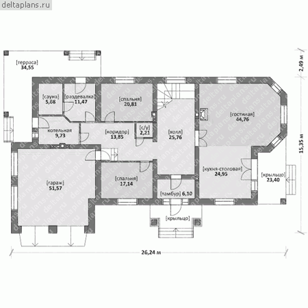
Проект M-407-1K
Проект M-407-1K
Застройщик: Юникс-Строй
407.77 м²
1 / 3
🏠
407.77 м²
📐
2 этаж
🧱
Кирпич
Похожие проекты
Похожие по цене
Похожие по площади
Проект E-408-1K
2 этаж
от 33 464 200 ₽
→
Проект U-408-1K
3 этаж
от 33 472 400 ₽
→
Проект E-477-1P
3 этаж
от 33 397 000 ₽
→
Проект E-407-1P
2 этаж
от 28 539 000 ₽
→
Проект E-408-1K
2 этаж
от 33 464 200 ₽
→
Проект «Blythe»
4 спальн. · 4 санузл.
от 20 400 000 ₽
→
На сайт застройщика