Перейти к контенту
Подбор и сравнение проектов домов от застройщиков Московской области
Подборщик домов
Калькулятор сметы
Калькулятор площади
Форум
Блог
Главная
›
Каталог проектов
›
Проект G-198-1D
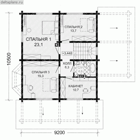
Проект G-198-1D
Застройщик: Юникс-Строй
197.4 м²
1 / 3
🏠
197.4 м²
📐
2 этаж
🧱
Дерево
Похожие проекты
Похожие по цене
Похожие по площади
Проект R-361-1K
3 этаж
от 29 602 000 ₽
→
Дом по проекту «ЗС 668-20» - Золотое Сечение
3 спальн. · 3 санузл.
от 29 625 000 ₽
→
Коттедж в стиле Райта «Лимбург»
5 спальн. · 5 санузл. · 2 этаж
от 29 586 000 ₽
→
Проект U-198-1P
2 этаж
от 13 815 900 ₽
→
Дома из керамических блоков Вилла 2 M под ключ
3 спальн. · 2 санузл. · 2 этаж
от 11 213 100 ₽
→
Проекты домов из газобетона Вилла 2 M под ключ
4 спальн. · 2 санузл. · 2 этаж
от 9 830 800 ₽
→
На сайт застройщика