Перейти к контенту
Подбор и сравнение проектов домов от застройщиков Московской области
Подборщик домов
Калькулятор сметы
Калькулятор площади
Форум
Блог
Главная
›
Каталог проектов
›
Проект H-423-1P
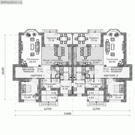
Проект H-423-1P
Застройщик: Юникс-Строй
422.4 м²
1 / 3
🏠
422.4 м²
📐
2 этаж
🧱
Пеноблок
Похожие проекты
Похожие по цене
Похожие по площади
Проект W-361-1K
3 этаж
от 29 561 000 ₽
→
Коттедж в стиле Райта «Лимбург»
5 спальн. · 5 санузл. · 2 этаж
от 29 586 000 ₽
→
Проект R-361-1K
3 этаж
от 29 602 000 ₽
→
Проект C-425-1K
2 этаж
от 34 686 000 ₽
→
Проект «Veneto»
от 21 150 000 ₽
→
Проект «Veneto»
от 21 150 000 ₽
→
На сайт застройщика