Перейти к контенту
Подбор и сравнение проектов домов от застройщиков Московской области
Подборщик домов
Калькулятор сметы
Калькулятор площади
Форум
Блог
Главная
›
Каталог проектов
›
Проект G-244-2D
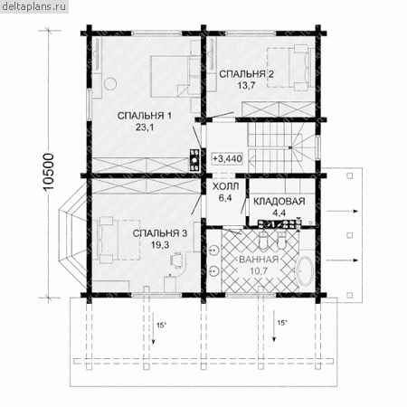
Проект G-244-2D
Застройщик: Юникс-Строй
242.6 м²
1 / 4
🏠
242.6 м²
📐
3 этаж
🧱
Дерево
Похожие проекты
Похожие по цене
Похожие по площади
Современный дом в стиле Барн Хаус «Вилар»
5 спальн. · 4 санузл. · 2 этаж
от 36 384 000 ₽
→
Проект S-443-1K
3 этаж
от 36 358 800 ₽
→
Проект U-519-1P
3 этаж
от 36 343 300 ₽
→
Проект E-243-1P
2 этаж
от 16 984 100 ₽
→
Проект G-243-1K
3 этаж
от 19 901 400 ₽
→
Проект одноэтажного коттеджа "Леонардо" из газобетона
4 спальн. · 2 этаж
от 10 101 000 ₽
→
На сайт застройщика