Перейти к контенту
Подбор и сравнение проектов домов от застройщиков Московской области
Подборщик домов
Калькулятор сметы
Калькулятор площади
Форум
Блог
Главная
›
Каталог проектов
›
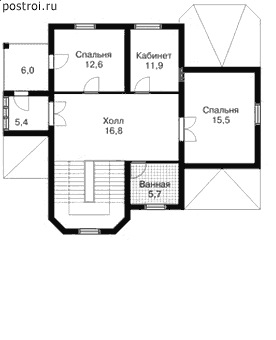
Проект G-243-1K
Проект G-243-1K
Застройщик: Юникс-Строй
242.7 м²
1 / 4
🏠
242.7 м²
📐
3 этаж
🧱
Кирпич
Похожие проекты
Похожие по цене
Похожие по площади
Проект M-132-1D
2 этаж
от 19 902 000 ₽
→
Проект G-284-1P
2 этаж
от 19 908 000 ₽
→
Проект дома «Medford»
3 спальн. · 4 санузл.
от 19 910 000 ₽
→
Проект E-243-1P
2 этаж
от 16 984 100 ₽
→
Проект G-244-2D
3 этаж
от 36 390 000 ₽
→
Проект одноэтажного коттеджа "Леонардо" из газобетона
4 спальн. · 2 этаж
от 10 101 000 ₽
→
На сайт застройщика