Перейти к контенту
Подбор и сравнение проектов домов от застройщиков Московской области
Подборщик домов
Калькулятор сметы
Калькулятор площади
Форум
Блог
Главная
›
Каталог проектов
›
Проект H-123-1K
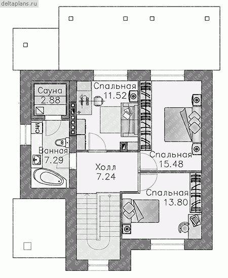
Проект H-123-1K
Застройщик: Юникс-Строй
138.66 м²
1 / 3
🏠
138.66 м²
📐
2 этаж
🧱
Кирпич
Похожие проекты
Похожие по цене
Похожие по площади
Дом по проекту «ЗС 216-22» - Золотое Сечение
3 спальн. · 2 санузл.
от 11 375 000 ₽
→
Проект R-162-1P
2 этаж
от 11 375 000 ₽
→
Проект дома «Коннор»
3 спальн. · 2 этаж
от 11 365 000 ₽
→
Дом из оцилиндрованного бревна «Вологда» | ЭкоТех
3 спальн. · 1 санузл. · 1 этаж
от 4 176 000 ₽
→
Проект B-138-1P
2 этаж
от 9 695 000 ₽
→
Проект U-138-1P
2 этаж
от 9 723 700 ₽
→
На сайт застройщика