Перейти к контенту
Подбор и сравнение проектов домов от застройщиков Московской области
Подборщик домов
Калькулятор сметы
Калькулятор площади
Форум
Блог
Главная
›
Каталог проектов
›
Проект R-162-1P
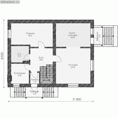
Проект R-162-1P
Застройщик: Юникс-Строй
162.5 м²
1 / 3
🏠
162.5 м²
📐
2 этаж
🧱
Пеноблок
Похожие проекты
Похожие по цене
Похожие по площади
Дом по проекту «ЗС 216-22» - Золотое Сечение
3 спальн. · 2 санузл.
от 11 375 000 ₽
→
Проект двухэтажного дома с террасой и 2 балконами Modern-150 м² из газоблока — Домострой
5 спальн. · 2 санузл. · 2 этаж
от 11 376 000 ₽
→
Проект H-123-1K
2 этаж
от 11 370 120 ₽
→
Дом из газобетонных блоков С-163 ГБ «Вилла»
3 спальн. · 2 санузл. · 3 этаж
от 8 026 000 ₽
→
Дом из керамических блоков С-163 КЕ «Вилла»
3 спальн. · 2 санузл. · 3 этаж
от 8 026 000 ₽
→
Каркасный дом С-163 КР «Вилла»
3 спальн. · 2 санузл. · 3 этаж
от 7 253 000 ₽
→
На сайт застройщика