Перейти к контенту
Подбор и сравнение проектов домов от застройщиков Московской области
Подборщик домов
Калькулятор сметы
Калькулятор площади
Форум
Блог
Главная
›
Каталог проектов
›
Проект M-129-1P
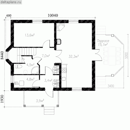
Проект M-129-1P
Застройщик: Юникс-Строй
168.48 м²
1 / 3
🏠
168.48 м²
📐
2 этаж
🧱
Пеноблок
Похожие проекты
Похожие по цене
Похожие по площади
Проект U-143-1K
2 этаж
от 11 792 420 ₽
→
Проект дома U-168-1P
2 этаж
от 11 795 000 ₽
→
Проект U-165-2P
2 этаж
от 11 788 000 ₽
→
Проект двухэтажного каркасного дома "Тефия3"
4 спальн. · 2 этаж
от 12 115 760 ₽
→
Проект одноэтажного каркасного дома Бунгало XL под ключ от компании БАКО
2 спальн. · 2 санузл. · 1 этаж
от 7 778 700 ₽
→
Проект Y-168-1D
2 этаж
от 25 275 000 ₽
→
На сайт застройщика