Перейти к контенту
Подбор и сравнение проектов домов от застройщиков Московской области
Подборщик домов
Калькулятор сметы
Калькулятор площади
Форум
Блог
Главная
›
Каталог проектов
›
Проект U-143-1K
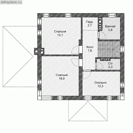
Проект U-143-1K
Застройщик: Юникс-Строй
143.81 м²
1 / 3
🏠
143.81 м²
📐
2 этаж
🧱
Кирпич
Похожие проекты
Похожие по цене
Похожие по площади
Проект M-129-1P
2 этаж
от 11 793 600 ₽
→
Проект дома U-168-1P
2 этаж
от 11 795 000 ₽
→
Проект U-165-2P
2 этаж
от 11 788 000 ₽
→
Арарат (9.8x8.8)
4 спальн. · 2 санузл. · 2 этаж
от 8 327 000 ₽
→
Проект M-143-1P
2 этаж
от 10 066 000 ₽
→
Проект одноэтажного коттеджа "Первая любовь КД" из газобетона
4 спальн. · 2 этаж
от 8 028 000 ₽
→
На сайт застройщика