Перейти к контенту
Подбор и сравнение проектов домов от застройщиков Московской области
Подборщик домов
Калькулятор сметы
Калькулятор площади
Форум
Блог
Главная
›
Каталог проектов
›
Проект M-168-1P
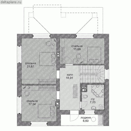
Проект M-168-1P
Застройщик: Юникс-Строй
168.01 м²
1 / 3
🏠
168.01 м²
📐
2 этаж
🧱
Пеноблок
Похожие проекты
Похожие по цене
Похожие по площади
Дом Миронцево из газобетона: заказать в Москве по низкой цене
4 спальн. · 3 санузл. · 2 этаж
от 11 760 000 ₽
→
Дом Миронцево из кирпича: заказать в Москве по низкой цене
4 спальн. · 3 санузл. · 2 этаж
от 11 760 000 ₽
→
Проект одноэтажного коттеджа "Беркут" из газобетона
2 этаж
от 11 757 000 ₽
→
Проект одноэтажного дома "Слобода Подновье" из бруса
4 спальн. · 2 этаж
от 12 813 651 ₽
→
Дом по проекту «ЗС 336-18» - Золотое Сечение
3 спальн. · 2 санузл.
от 21 000 000 ₽
→
Дом по проекту «ЗС 419-19» - Золотое Сечение
5 спальн. · 2 санузл.
от 21 000 000 ₽
→
На сайт застройщика