Перейти к контенту
Подбор и сравнение проектов домов от застройщиков Московской области
Подборщик домов
Калькулятор сметы
Калькулятор площади
Форум
Блог
Главная
›
Каталог проектов
›
Проект M-206-1K
Проект M-206-1K
Застройщик: Юникс-Строй
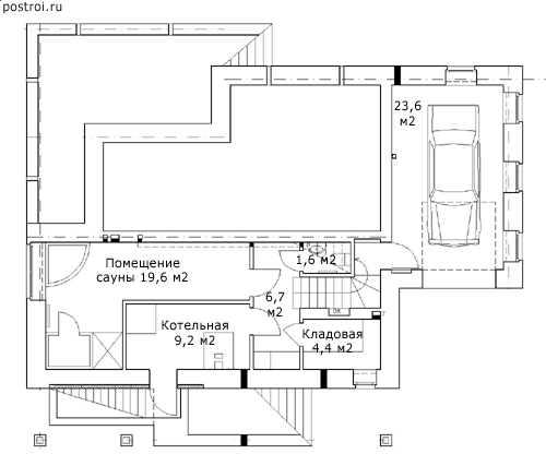
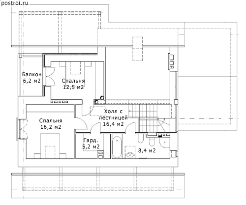
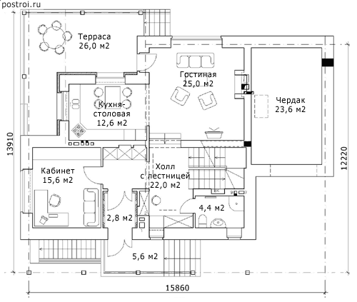
206.2 м²
1 / 4
🏠
206.2 м²
📐
3 этаж
🧱
Кирпич
Похожие проекты
Похожие по цене
Похожие по площади
Проект дома N-253-1P
2 этаж
от 16 907 100 ₽
→
Проект X-241-1P
2 этаж
от 16 900 100 ₽
→
Проект H-262-1P
2 этаж
от 16 920 400 ₽
→
Проект V-206-1P
2 этаж
от 14 436 100 ₽
→
Проект B-206-1P
2 этаж
от 14 427 000 ₽
→
Проект двухэтажного каркасного дома Усадьба XL под ключ от компании БАКО
4 спальн. · 2 санузл. · 2 этаж
от 8 288 800 ₽
→
На сайт застройщика