Перейти к контенту
Подбор и сравнение проектов домов от застройщиков Московской области
Подборщик домов
Калькулятор сметы
Калькулятор площади
Форум
Блог
Главная
›
Каталог проектов
›
Проект O-358-1K
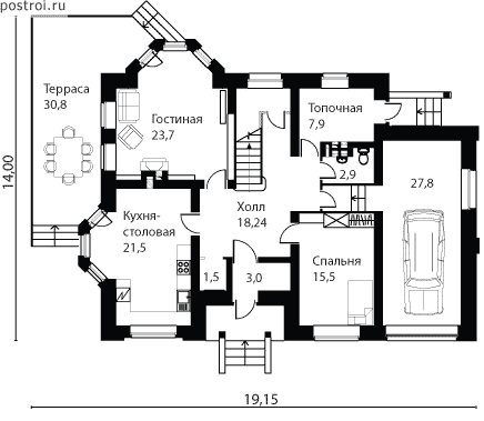
Проект O-358-1K
Застройщик: Юникс-Строй
339.5 м²
1 / 4
🏠
339.5 м²
📐
3 этаж
🧱
Кирпич
Похожие проекты
Похожие по цене
Похожие по площади
Проект M-185-1D
2 этаж
от 27 817 500 ₽
→
Дом по проекту «ЗС 40-16» - Золотое Сечение
3 спальн. · 2 санузл.
от 27 875 000 ₽
→
Проект «Gothenburg»
4 спальн. · 4 санузл. · 1 этаж
от 27 800 000 ₽
→
Дом из газобетонных блоков С-340 ГБ «Нео»
4 спальн. · 3 санузл. · 4 этаж
от 13 994 000 ₽
→
Дом из керамических блоков С-340 КЕ «Нео»
4 спальн. · 3 санузл. · 4 этаж
от 13 994 000 ₽
→
Кирпичный дом С-340 К «Нео»
4 спальн. · 3 санузл. · 4 этаж
от 14 928 000 ₽
→
На сайт застройщика