Перейти к контенту
Подбор и сравнение проектов домов от застройщиков Московской области
Подборщик домов
Калькулятор сметы
Калькулятор площади
Форум
Блог
Главная
›
Каталог проектов
›
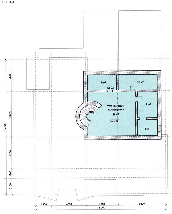
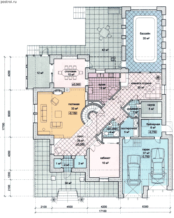
Проект R-560-1K
Проект R-560-1K
Застройщик: Юникс-Строй
560.0 м²
1 / 4
🏠
560.0 м²
📐
3 этаж
🧱
Кирпич
Похожие проекты
Похожие по цене
Похожие по площади
Проект S-560-1K
2 этаж
от 45 944 600 ₽
→
Проект U-656-1P
3 этаж
от 45 984 400 ₽
→
Проект M-558-1K
6 санузл. · 2 этаж
от 45 756 000 ₽
→
Проект S-560-1K
2 этаж
от 45 944 600 ₽
→
Проект U-560-1P
2 этаж
от 39 232 900 ₽
→
Проект M-558-1K
6 санузл. · 2 этаж
от 45 756 000 ₽
→
На сайт застройщика