Перейти к контенту
Подбор и сравнение проектов домов от застройщиков Московской области
Подборщик домов
Калькулятор сметы
Калькулятор площади
Форум
Блог
Главная
›
Каталог проектов
›
Проект U-560-1P
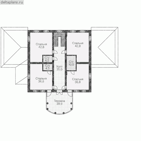
Проект U-560-1P
Застройщик: Юникс-Строй
560.47 м²
1 / 3
🏠
560.47 м²
📐
2 этаж
🧱
Пеноблок
Похожие проекты
Похожие по цене
Похожие по площади
Проект D-262-1D
2 этаж
от 39 225 000 ₽
→
Проект A-478-1K
3 этаж
от 39 196 000 ₽
→
Проект A-478-2K
3 этаж
от 39 196 000 ₽
→
Проект S-560-1K
2 этаж
от 45 944 600 ₽
→
Проект R-560-1K
3 этаж
от 45 920 000 ₽
→
Проект «Darby»
5 спальн. · 6 санузл.
от 28 100 000 ₽
→
На сайт застройщика