Перейти к контенту
Подбор и сравнение проектов домов от застройщиков Московской области
Подборщик домов
Калькулятор сметы
Калькулятор площади
Форум
Блог
Главная
›
Каталог проектов
›
Проект U-084-1P
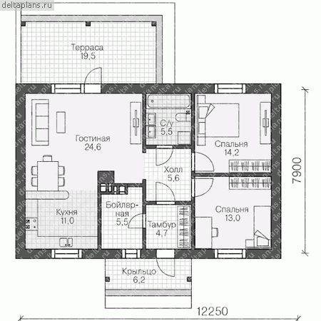
Проект U-084-1P
Застройщик: Юникс-Строй
84.18 м²
1 / 2
🏠
84.18 м²
📐
1 этаж
🧱
Пеноблок
Похожие проекты
Похожие по цене
Похожие по площади
Проект дома AS-2096
3 этаж
от 5 889 600 ₽
→
Дом из газобетона Проект ГБ-230
3 спальн. · 2 санузл. · 2 этаж
от 5 889 000 ₽
→
Проект U-085-2P
2 этаж
от 5 896 800 ₽
→
Проект U-085-2P
2 этаж
от 5 896 800 ₽
→
Проект дома T-084-1P
2 этаж
от 5 901 000 ₽
→
Проект каркасного дома КП-А01
3 спальн. · 1 этаж
от 6 015 000 ₽
→
На сайт застройщика