Перейти к контенту
Подбор и сравнение проектов домов от застройщиков Московской области
Подборщик домов
Калькулятор сметы
Калькулятор площади
Форум
Блог
Главная
›
Каталог проектов
›
Проект U-085-2P
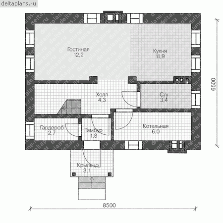
Проект U-085-2P
Застройщик: Юникс-Строй
84.24 м²
1 / 3
🏠
84.24 м²
📐
2 этаж
🧱
Пеноблок
Похожие проекты
Похожие по цене
Похожие по площади
Проект К-121 9 на 10, площадью 176 за 5 899 500 руб
4 спальн. · 2 этаж
от 5 899 500 ₽
→
Проект каркасного дома КП-104
1 этаж
от 5 900 000 ₽
→
Проект каркасного дома КП-59
1 этаж
от 5 900 000 ₽
→
Проект U-084-1P
1 этаж
от 5 892 600 ₽
→
Проект дома T-084-1P
2 этаж
от 5 901 000 ₽
→
Проект каркасного дома КП-А01
3 спальн. · 1 этаж
от 6 015 000 ₽
→
На сайт застройщика