Перейти к контенту
Подбор и сравнение проектов домов от застройщиков Московской области
Подборщик домов
Калькулятор сметы
Калькулятор площади
Форум
Блог
Главная
›
Каталог проектов
›
Проект U-230-1K
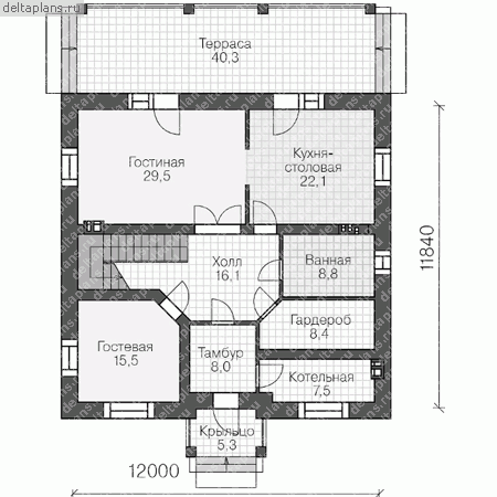
Проект U-230-1K
Застройщик: Юникс-Строй
230.32 м²
1 / 3
🏠
230.32 м²
📐
2 этаж
🧱
Кирпич
Похожие проекты
Похожие по цене
Похожие по площади
Дом по проекту «Мельдорф» - Золотое Сечение
3 спальн. · 2 санузл.
от 18 875 000 ₽
→
Современный дом с навесом для автомобиля «Мердорф»
4 спальн. · 4 санузл. · 2 этаж
от 18 900 000 ₽
→
Проект U-268-2P
2 этаж
от 18 904 900 ₽
→
Проект D-230-1D
2 этаж
от 34 530 000 ₽
→
Проект дома «Марони»
4 спальн. · 2 этаж
от 10 912 000 ₽
→
Проект двухэтажного дома "Октав-2" из бруса
4 спальн. · 2 этаж
от 15 317 844 ₽
→
На сайт застройщика