Перейти к контенту
Подбор и сравнение проектов домов от застройщиков Московской области
Подборщик домов
Калькулятор сметы
Калькулятор площади
Форум
Блог
Главная
›
Каталог проектов
›
Проект U-371-1K
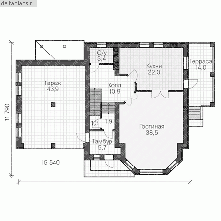
Проект U-371-1K
Застройщик: Юникс-Строй
371.63 м²
1 / 4
🏠
371.63 м²
📐
3 этаж
🧱
Кирпич
Похожие проекты
Похожие по цене
Похожие по площади
Проект W-372-1K
2 этаж
от 30 471 200 ₽
→
Дом по проекту «ЗС 227-17» - Золотое Сечение
3 спальн. · 2 санузл.
от 30 500 000 ₽
→
Проект M-371-1K
3 этаж
от 30 427 740 ₽
→
Проект W-372-1K
2 этаж
от 30 471 200 ₽
→
Проект A-371-1P
2 этаж
от 25 991 000 ₽
→
Проект К-152 14 на 14, площадью 372 за 12 543 000 руб
4 спальн. · 2 этаж
от 12 543 000 ₽
→
На сайт застройщика