Перейти к контенту
Подбор и сравнение проектов домов от застройщиков Московской области
Подборщик домов
Калькулятор сметы
Калькулятор площади
Форум
Блог
Главная
›
Каталог проектов
›
Проект V-072-1P
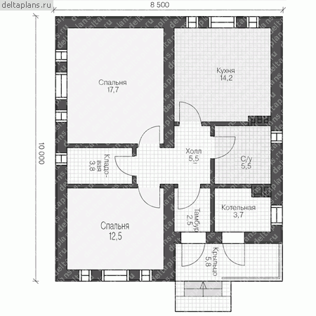
Проект V-072-1P
Застройщик: Юникс-Строй
65.38 м²
1 / 2
🏠
65.38 м²
📐
1 этаж
🧱
Пеноблок
Похожие проекты
Похожие по цене
Похожие по площади
ПД - 214 - Строительство домов из Каркаса, СИП, Бруса под ключ
3 спальн. · 2 санузл. · 2 этаж
от 4 580 000 ₽
→
Проект A-065-1P
2 этаж
от 4 571 000 ₽
→
Проект I-233-1S
3 этаж
от 4 582 220 ₽
→
Проект Q-041-1D
1 этаж
от 9 810 000 ₽
→
Проект A-065-1P
2 этаж
от 4 571 000 ₽
→
Проект одноэтажного дома "Елоха" из бруса
4 спальн. · 2 этаж
от 6 758 992 ₽
→
На сайт застройщика