Перейти к контенту
Подбор и сравнение проектов домов от застройщиков Московской области
Подборщик домов
Калькулятор сметы
Калькулятор площади
Форум
Блог
Главная
›
Каталог проектов
›
ПД - 214 - Строительство домов из Каркаса, СИП, Бруса под ключ
ПД - 214 - Строительство домов из Каркаса, СИП, Бруса под ключ
Застройщик: Стройград
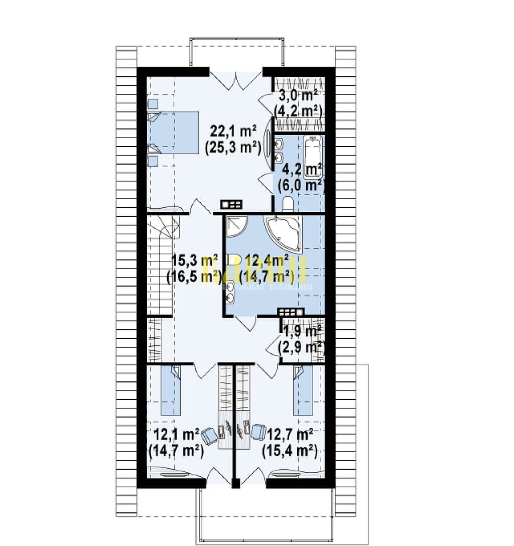
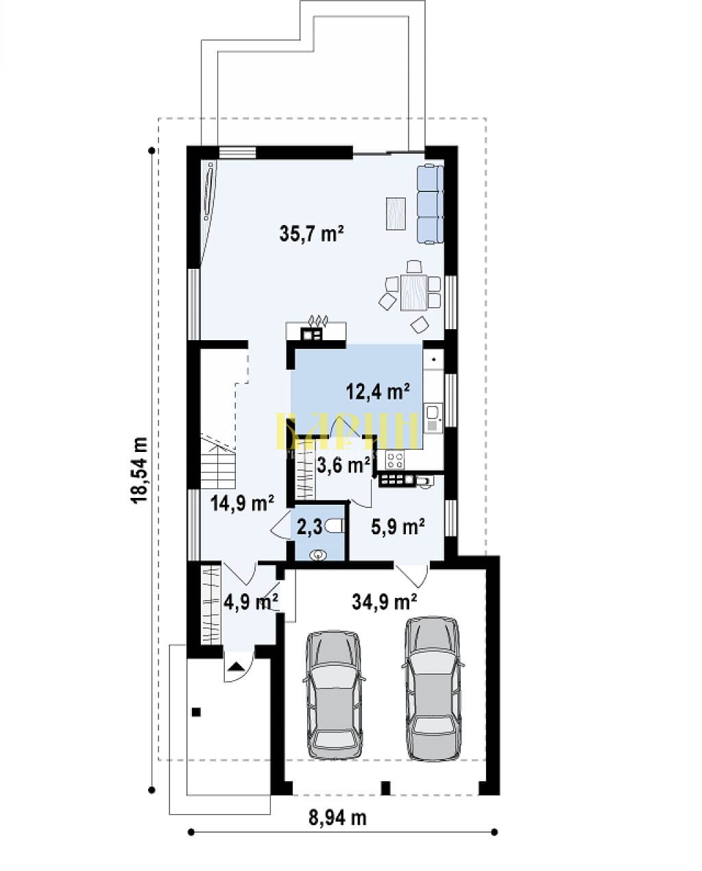
214.0 м²
1 / 3
🏠
214.0 м²
🛏
3 спален
🚿
2 санузл.
📐
2 этаж
Похожие проекты
Похожие по цене
Похожие по площади
Проект I-233-1S
3 этаж
от 4 582 220 ₽
→
Проект V-072-1P
1 этаж
от 4 576 600 ₽
→
Проект A-065-1P
2 этаж
от 4 571 000 ₽
→
Каркасный дом «Солнечное
от 11 985 000 ₽
→
Дом по проекту «Дессау» - Золотое Сечение
2 спальн. · 3 санузл.
от 26 750 000 ₽
→
Дом по проекту «ЗС 32-17» - Золотое Сечение
4 спальн. · 3 санузл.
от 26 750 000 ₽
→
На сайт застройщика