Перейти к контенту
Подбор и сравнение проектов домов от застройщиков Московской области
Подборщик домов
Калькулятор сметы
Калькулятор площади
Форум
Блог
Главная
›
Каталог проектов
›
Проект V-190-1K
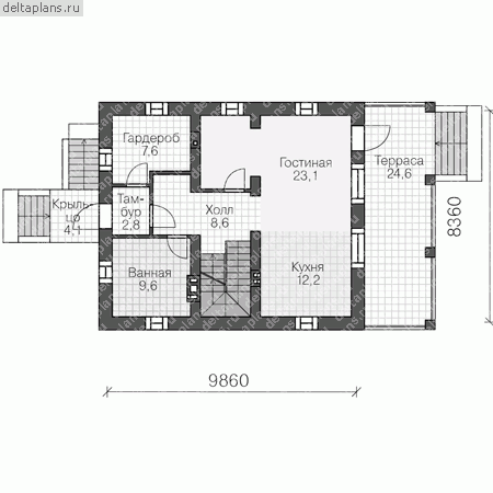
Проект V-190-1K
Застройщик: Юникс-Строй
190.11 м²
1 / 4
🏠
190.11 м²
📐
3 этаж
🧱
Кирпич
Похожие проекты
Похожие по цене
Похожие по площади
Проект A-320-1P
2 этаж
от 15 586 900 ₽
→
Проект дома из керамоблоков 12х13 ТКБ-201: цена 8979000 руб.
5 спальн. · 4 санузл. · 2 этаж
от 15 585 000 ₽
→
Проект T-223-1P
2 этаж
от 15 596 000 ₽
→
Проект R-190-1P
2 этаж
от 13 307 700 ₽
→
Проект двухэтажного каркасного дома Усадьба L под ключ от компании БАКО
3 спальн. · 2 санузл. · 2 этаж
от 7 770 000 ₽
→
СВ-3
5 спальн. · 3 санузл.
от 10 900 000 ₽
→
На сайт застройщика