Перейти к контенту
Подбор и сравнение проектов домов от застройщиков Московской области
Подборщик домов
Калькулятор сметы
Калькулятор площади
Форум
Блог
Главная
›
Каталог проектов
›
Проект R-190-1P
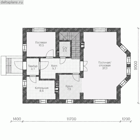
Проект R-190-1P
Застройщик: Юникс-Строй
190.11 м²
1 / 3
🏠
190.11 м²
📐
2 этаж
🧱
Пеноблок
Похожие проекты
Похожие по цене
Похожие по площади
Проект одноэтажного дома "Фора" из бруса
5 спальн. · 2 этаж
от 13 310 986 ₽
→
Проект дома «Тор»
4 спальн. · 2 этаж
от 13 315 000 ₽
→
Проект дома A-190-1P
2 этаж
от 13 300 000 ₽
→
Проект V-190-1K
3 этаж
от 15 589 020 ₽
→
Проект двухэтажного каркасного дома Усадьба L под ключ от компании БАКО
3 спальн. · 2 санузл. · 2 этаж
от 7 770 000 ₽
→
СВ-3
5 спальн. · 3 санузл.
от 10 900 000 ₽
→
На сайт застройщика