Перейти к контенту
Подбор и сравнение проектов домов от застройщиков Московской области
Подборщик домов
Калькулятор сметы
Калькулятор площади
Форум
Блог
Главная
›
Каталог проектов
›
Проект V-204-1P
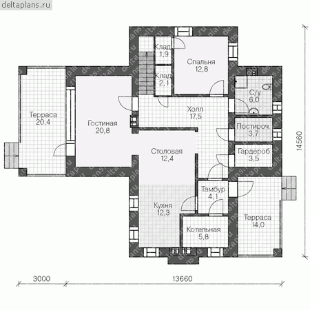
Проект V-204-1P
Застройщик: Юникс-Строй
204.22 м²
1 / 3
🏠
204.22 м²
📐
2 этаж
🧱
Пеноблок
Похожие проекты
Похожие по цене
Похожие по площади
Каркасный дом «Мельниково
от 14 295 000 ₽
→
Проект U-174-1K
2 этаж
от 14 293 420 ₽
→
Проект Stettler
2 спальн. · 3 санузл. · 1 этаж
от 14 298 000 ₽
→
Проект H-204-1P
2 этаж
от 14 287 000 ₽
→
Проект C-204-1S
2 этаж
от 4 026 286 ₽
→
Проект L-204-1P
2 этаж
от 14 308 000 ₽
→
На сайт застройщика