Перейти к контенту
Подбор и сравнение проектов домов от застройщиков Московской области
Подборщик домов
Калькулятор сметы
Калькулятор площади
Форум
Блог
Главная
›
Каталог проектов
›
Проект V-357-1K
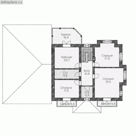
Проект V-357-1K
Застройщик: Юникс-Строй
357.39 м²
1 / 3
🏠
357.39 м²
📐
2 этаж
🧱
Кирпич
Похожие проекты
Похожие по цене
Похожие по площади
Проект M-314-1K
3 этаж
от 29 321 560 ₽
→
Проект дома H-419-1P
3 этаж
от 29 323 000 ₽
→
Двухэтажный особняк проект Райт
4 спальн. · 4 санузл. · 2 этаж
от 29 287 500 ₽
→
Дом из газобетонных блоков С-358 ГБ «Арфа»
3 спальн. · 4 санузл. · 3 этаж
от 14 474 000 ₽
→
Дом из керамических блоков С-358 КЕ «Арфа»
3 спальн. · 4 санузл. · 3 этаж
от 14 474 000 ₽
→
Кирпичный дом С-358 К «Арфа»
3 спальн. · 4 санузл. · 3 этаж
от 15 295 000 ₽
→
На сайт застройщика