Перейти к контенту
Подбор и сравнение проектов домов от застройщиков Московской области
Подборщик домов
Калькулятор сметы
Калькулятор площади
Форум
Блог
Главная
›
Каталог проектов
›
Проект G-209-1D
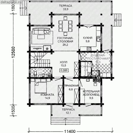
Проект G-209-1D
Застройщик: Юникс-Строй
209.1 м²
1 / 3
🏠
209.1 м²
🚿
4 санузл.
📐
2 этаж
🧱
Дерево
Похожие проекты
Похожие по цене
Похожие по площади
Проект M-448-1P
2 этаж
от 31 388 000 ₽
→
Проект J-383-1K
2 этаж
от 31 406 000 ₽
→
Проект U-382-1K
2 этаж
от 31 324 000 ₽
→
Проект M-209-1K
3 этаж
от 17 146 200 ₽
→
Проект одноэтажного комбинированного коттеджа "Эскимо"
5 спальн. · 2 этаж
от 8 928 700 ₽
→
Дом по проекту «ЗС 590-20» - Золотое Сечение
4 спальн. · 2 санузл.
от 26 125 000 ₽
→
На сайт застройщика