Перейти к контенту
Подбор и сравнение проектов домов от застройщиков Московской области
Подборщик домов
Калькулятор сметы
Калькулятор площади
Форум
Блог
Главная
›
Каталог проектов
›
Проект J-383-1K
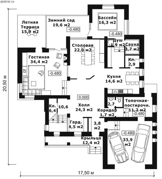
Проект J-383-1K
Застройщик: Юникс-Строй
383.0 м²
1 / 3
🏠
383.0 м²
📐
2 этаж
🧱
Кирпич
Похожие проекты
Похожие по цене
Похожие по площади
Проект M-448-1P
2 этаж
от 31 388 000 ₽
→
Проект G-209-1D
4 санузл. · 2 этаж
от 31 365 000 ₽
→
Проект S-383-1K
3 этаж
от 31 463 400 ₽
→
Проект U-383-1P
2 этаж
от 26 835 200 ₽
→
Дом из газобетонных блоков С-384 ГБ «Балу»
4 спальн. · 4 санузл. · 4 этаж
от 16 096 000 ₽
→
Дом из керамических блоков С-384 КЕ «Балу»
4 спальн. · 4 санузл. · 4 этаж
от 16 096 000 ₽
→
На сайт застройщика